Pre-built Homes

Our range of large transportable homes offers a smart, flexible solution for modern living. Whether you’re building a new farmhouse, creating a Kiwi bach, adding an investment property, or installing a granny flat, we have options to suit your needs.

Available in 1–3 bedroom layouts, each home is fully consented and built to a high standard. Once complete, your home is transported to site, connected to services, and ready for you to move in.

Our homes feature quality weatherboard and vertical profile claddings, durable Colorsteel roofing, and GIB interior linings, providing the look and feel of a traditional home with the efficiency of a transportable build.

All prices are ex-our yard. We can provide site-specific quotes for transport and foundation installation.

Browse our floor plans below and customise your new home with your choice of flooring, colours, kitchen finishes, and bathroom selections.

Finance available!

The Mono 40

1 Bed, 1 Bath

Our 40m² home features one bedroom and one bathroom, making it an ideal granny flat or additional dwelling on your property. Perfect for family members or staff accommodation, this compact yet comfortable home offers a smart solution for adding extra living space.

The Mono70

2 Bed, 1 Bath

Our 70 square metre home includes two double bedrooms, a full sized bathroom, a full sized kitchen as well as a large open plan living/dining area allowing plenty of light in, and creating the opportunity for great in door-outdoor flow if a deck is constructed outside to give this home even more space.

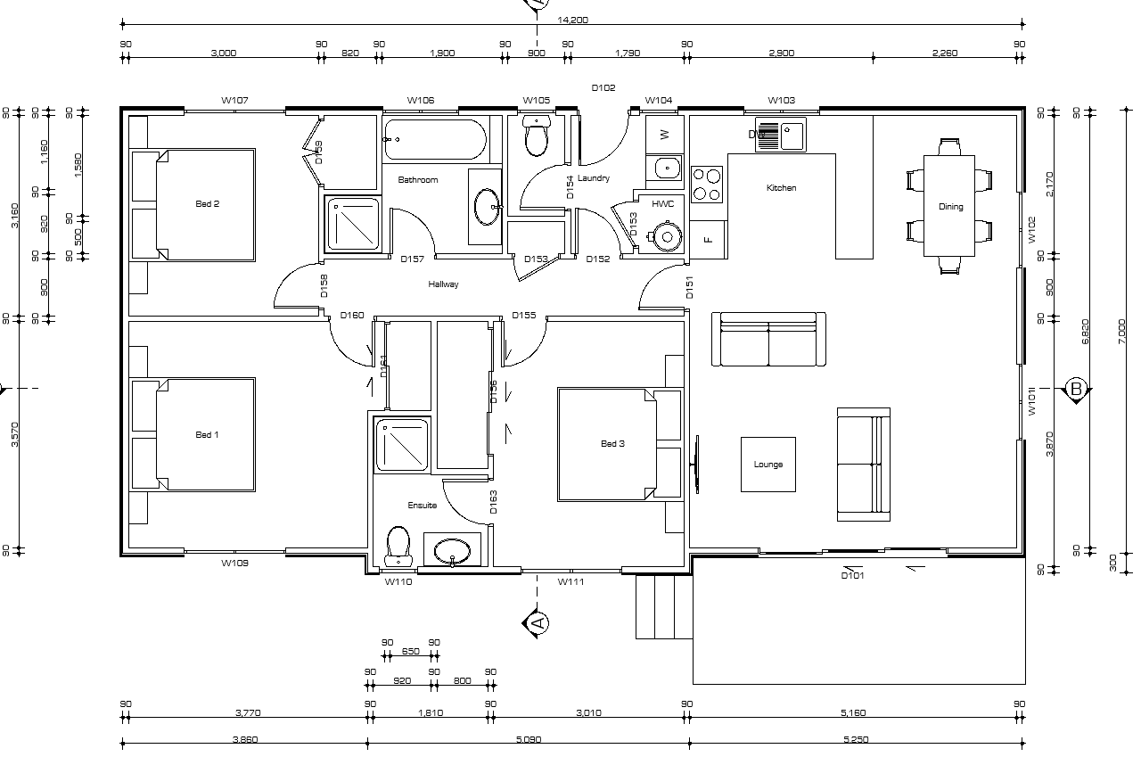
Floor plan of a house showing three bedrooms, two bathrooms, a kitchen, a dining area, a lounge, a laundry room, and hallways, with measurements and door/window placements.

The Classic 70

2 Bed, 1 Bath

Our 70m² Classic offers two double bedrooms, a full-sized bathroom, and a modern kitchen, all centred around a bright, open-plan living and dining area. Designed to capture natural light and enhance indoor-outdoor flow, this home can be easily extended with a deck to create even more functional living space.

The Classic 94

3 Bed, 2 Bath

Our 99 m² design is a well-appointed three-bedroom, two-bathroom family home, thoughtfully laid out for modern living.
The open-plan kitchen, dining, and living area creates a spacious, light-filled hub that flows seamlessly to the outdoors, making it ideal for entertaining. With the option to incorporate a generous deck, this home is perfectly suited to relaxed family living and indoor–outdoor connection.


At Prime Cabins NZ, we’re redefining modern living by delivering high-quality transportable homes with all the features of a traditional house — without the long build times or hefty price tag. Built for value. Delivered ready to move in.
Locally built. Nationwide trust.